Leave a Message

Thank you for your message. We will be in touch with you shortly.

Explore Our Properties

Property Description

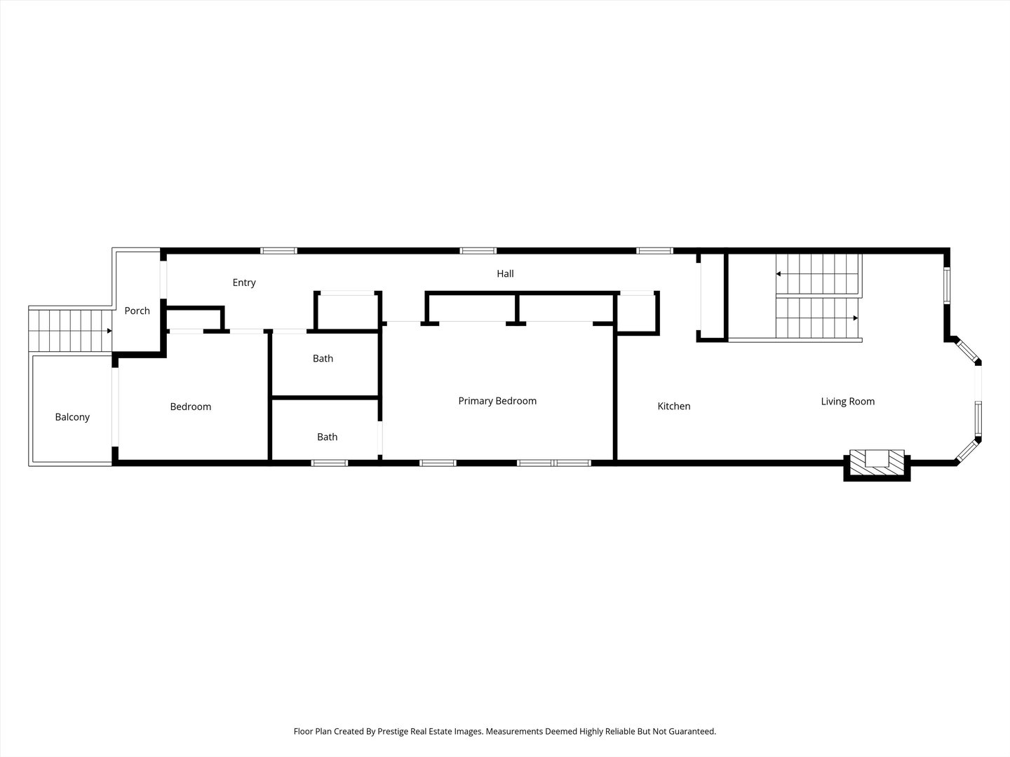
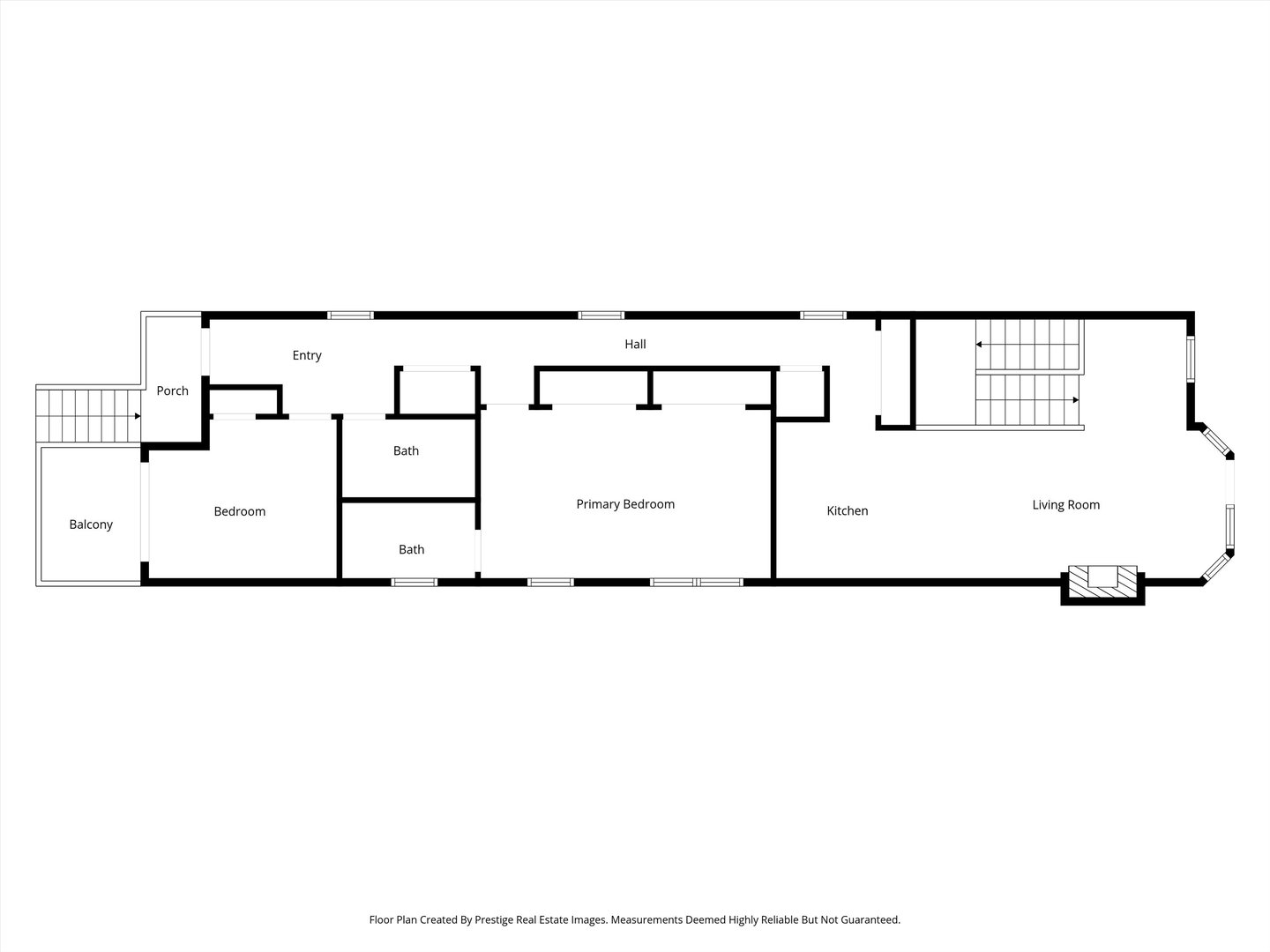
Check the second floorplan where a 3rd bedroom can be added to significantly boost the property value! Seller has drawings approved from the contractor! Thoughtfully renovated and full of character, this stunning 2-bedroom, 2-bath condo blends modern comfort with architectural charm. Vaulted ceilings and skylights flood the main living space with natural light, creating an open, airy atmosphere perfect for both everyday living and entertaining. A cozy wood-burning fireplace anchors the living area, while custom lighting on dimmers allows you to set the perfect ambiance day or night. The contemporary kitchen features stainless steel appliances, a built-in wine refrigerator, and a functional layout ideal for hosting or quiet evenings at home. Updated HVAC ensures year-round comfort, and in-unit laundry with a newer washer and dryer adds everyday convenience. Step outside to a private cedar deck offering sweeping city views - an inviting retreat for morning coffee or evening gatherings. The spacious primary suite includes generous closet storage and a private bath designed for comfort and privacy. One gated parking space is included, along with ample street parking for guests. Perfectly positioned near restaurants, nightlife, and entertainment, this home offers the best of city living right outside your door. Tenant occupied until June 30th, 2026 lease buy-out options may be available depending on offer terms. Flexible floor plan offers the potential to convert to a 3-bedroom by dividing the primary bedroom into two rooms, if desired by buyer. Please contact listing agent to discuss layout and options.

Overview

Property Status
For Sale
MLS ID
12595926
Property Type
Condo
Year Built
2004

Features & Amenities

Stories
3
Water Source
Lake Michigan
Roof
Asphalt
Lot Features
Level
Parking
Garage Faces Side, Yes, Owned
Heat Type
Natural Gas, Forced Air
Air Conditioning
Central Air
Laundry Room
Washer Hookup, In Unit
Fireplace
Wood Burning
Appliances
Range, Microwave, Dishwasher, Refrigerator, Washer, Dryer, Disposal, Stainless Steel Appliance(s), Wine Refrigerator
Other Interior Features
Cathedral Ceiling(s)
Sewer
Public Sewer
Substructure
Brick/Mortar
HOA Amenities
Laundry, Fencing, Private Laundry Hkup
Other Exterior Features
Balcony
Elementary School
Dett Elementary School
High School
Marshall Metropolitan High Schoo
School District
299
Sales Price
$390,000
Real Estate Tax
$6,073/yr
HOA
$153/mo

Downloads

2237 W Washington Boulevard Unit: 3

Schedule a Tour

We would love to help you see this beautiful home! As a full-service brokerage, we can help you tour. Please submit an offer, and answer questions about the buying process.

Thank you

for your interest in 2237 W Washington Boulevard Unit: 3, Chicago, IL 60612

2237 W Washington Boulevard Unit: 3
Navigate
2237 W Washington Boulevard Unit: 3
explore in 3d

Mortgage Calculator

Estimate your monthly mortgage payment, including the principal and interest, property taxes, and HOA. Adjust the values to generate a more accurate rate.
$0,000 Your Payment 20 15 65
$0,000 Your Payment

I'm Interested In

2237 W Washington Boulevard Unit: 3

or
  • CallKiki Parmar

    License #475207171

    (734) 629-2024
  • Follow Us On Instagram